Прямая аренда, срок аренды - длительный
Ключевые детали
| Категория | Офисы | Тип сделки | Аренда |
|---|---|---|---|
| Площадь | 217 м2 | Этажность | 1/4 |
Параметры
| Арендные каникулы | Есть | Тип здания | Административное здание |
|---|---|---|---|
| Тип входа | Свободный | Состояние | Офисная отделка |
| Планировка | Открытая | Высота потолков м. | 3 |
| Электричество | Есть | Мощность, кВт | 25 |
| Отопление | Центральное | Водоснабжение | Есть |
| Вентиляция | Приточная | Кондиционирование | Местное |
| Система пожаротушения | Сигнализация | Парковка | Открытая |
| Юридический адрес | Есть |
Подробное описание
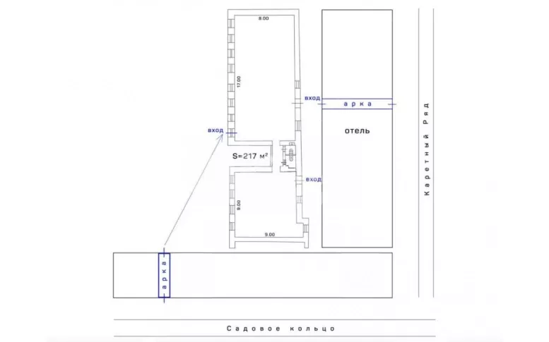
Прямая аренда от собственника. Помещение свободного назначения. Антикризисные условия обсуждаются. Основной вход с Каретного Ряда - в текущий момент закрыт из-за строительства 5-ти звёздочного отеля. Сейчас используется дополнительный вход со двора с Садового кольца. Первый этаж 4-х этажного жилого дома 1822 года постройки - НЕ является памятником архитектуры. Общая площадь помещения 217 кв.м. - состоит из двух залов 136 кв.м. и 81 кв.м. 2 отдельных входа, 16 окон, 2 санузла, высота потолков 3 метра, парковка во дворе дома под шлагбаум (выделено 2 места). Прошлый арендатор - офис, помещение свободно. По соседству работают: кафе-бар Delicatessen, стоматология Зуб-ру, центр мануальной терапии. На 1-й линии работают: Дикси, Мясновъ/Отдохни, Black Hat Bar, пиццерия Supernova, Дежурная аптека, кальянная Мята, винный бар Винил и вино.





